+380 96 120 92 92
Facebook
onlysip
  • Головна
  • Послуги
  • Про нас
  • Проєкти
  • Готові об’єкти
  • Часті питання
  • Блог
  • Контакти

SIP-панельний будинок 52,80м2 від OnlySip

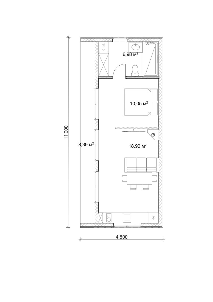
Цей проєкт — сучасний одноповерховий будинок від OnlySip, зведений із енергоефективних SIP-панелей. Фасад у мінімалістичному стилі поєднує натуральне дерев’яне облицювання та глибокі акценти, створюючи стильний контраст і затишну атмосферу. У центрі будинку розташована простора кухня-вітальня площею 18,90 м², яка забезпечує комфортну зону для щоденного відпочинку та прийому гостей. Поруч знаходиться спальня 10,05 м² із зручним зонуванням для сну та роботи. Санвузол площею 6,98 м² продуманий так, щоб забезпечити максимальну функціональність на компактній площі. Великі розсувні вікна ведуть на широку терасу, яка додає простору та створює ідеальне місце для релаксу на природі.

52,80м2 OnlySip план
52,80м2 OnlySip план

Лаконічна прямокутна форма будинку дозволяє оптимально використовувати площу та гармонійно вписуватись у різні ландшафти. SIP-технологія забезпечує чудову теплоізоляцію, довговічність і швидкий монтаж. Проєкт ідеально підходить як для заміського проживання, так і для створення комфортабельних відпочинкових комплексів чи глемпінгів.

52,80м2 OnlySip фасади1
52,80м2 OnlySip фасади2
52,80м2 OnlySip фасади3
52,80м2 OnlySip фасади3
SIP-панельний будинок 48,00м2 від OnlySip
SIP-панельний будинок 48,00м2 від OnlySip
SIP-панельний будинок 195,79м2 від OnlySip
SIP-панельний будинок 195,79м2 від OnlySip

Контакти

м. Тернопіль
+38 096 120 92 92
onlysipua@gmail.com

Категорії

  • Головна
  • Послуги
  • Про нас
  • Проєкти
  • Готові об’єкти
  • Часті питання
  • Блог
  • Контакти
onlysip