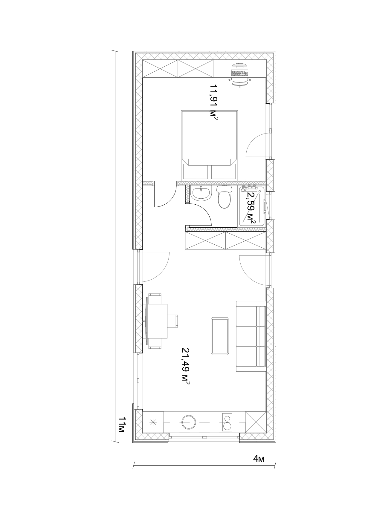
Цей проєкт — сучасний одноповерховий будинок від OnlySip, зведений із надійних та енергоефективних SIP-панелей. Мінімалістичний фасад поєднує темне облицювання з натуральним деревом, створюючи стильний контраст і затишну атмосферу. У центрі планування розташована простора кухня-вітальня площею 21,49 м², що забезпечує комфортний простір для відпочинку та прийому гостей. Окрема спальня площею 11,91 м² гарантує приватність і тишу. Санвузол на 2,59 м² продуманий так, щоб забезпечити функціональність у компактному форматі. Великі панорамні двері ведуть на простору дерев’яну терасу, яка розширює житлову зону та створює місце для відпочинку на природі.
Завдяки лаконічній архітектурі будинок гармонійно вписується в будь-який ландшафт. SIP-технологія забезпечує стабільну теплоізоляцію, енергоефективність і швидкий монтаж. Проєкт ідеально підходить для заміського проживання, облаштування відпочинкової бази або глемпінг-комплексу.
