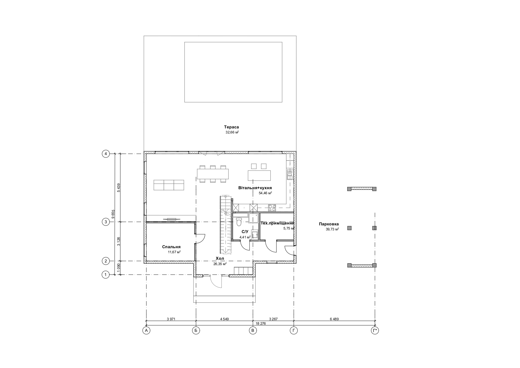
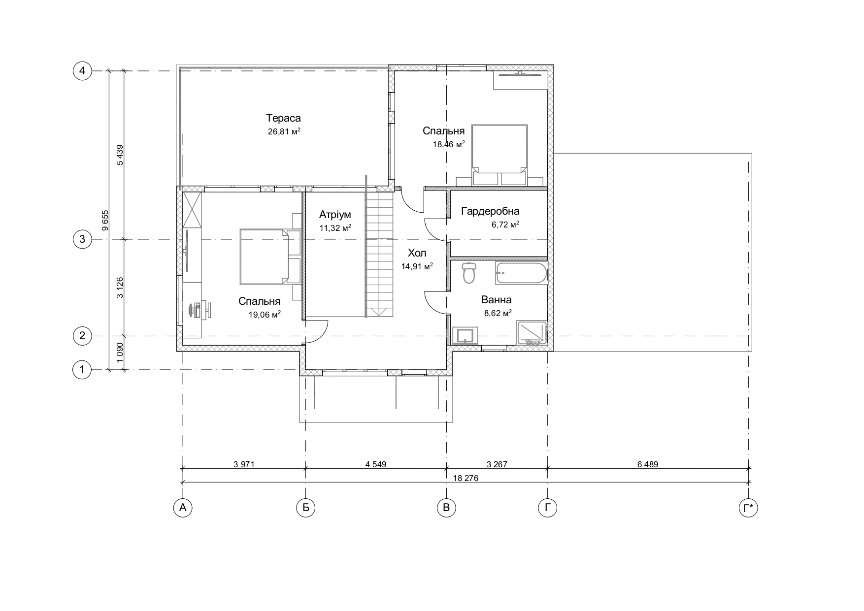
Цей проєкт — сучасний двоповерховий будинок від OnlySip, створений із використанням енергоефективних SIP-панелей. Архітектура виконана в мінімалістичному стилі з прямими лініями, великими панорамними вікнами та контрастним поєднанням білого та графітового фасаду. На першому поверсі розташована простора вітальня-кухня площею понад 54 м², що забезпечує максимальне природне освітлення та комфорт для всієї родини. Тут також передбачено технічне приміщення, санвузол і зручний хол з виходом на терасу площею 32,66 м². На другому поверсі знаходяться дві великі спальні, гардеробна, ванна кімната та атріум, який відкриває додатковий простір і світло. З головної спальні є вихід на простору терасу площею 26,81 м², що ідеально підходить для ранкової кави або вечірнього відпочинку. Біля будинку розташовано навіс-парковку площею понад 30 м², що забезпечує зручність та захист автомобіля.
Завдяки SIP-технології будинок має високу енергоефективність, швидко зводиться та служить десятиліттями. Це ідеальний вибір для сім’ї, яка цінує стиль, комфорт і продумане планування.
