+380 96 120 92 92
Facebook
onlysip
  • Головна
  • Послуги
  • Про нас
  • Проєкти
  • Готові об’єкти
  • Часті питання
  • Блог
  • Контакти

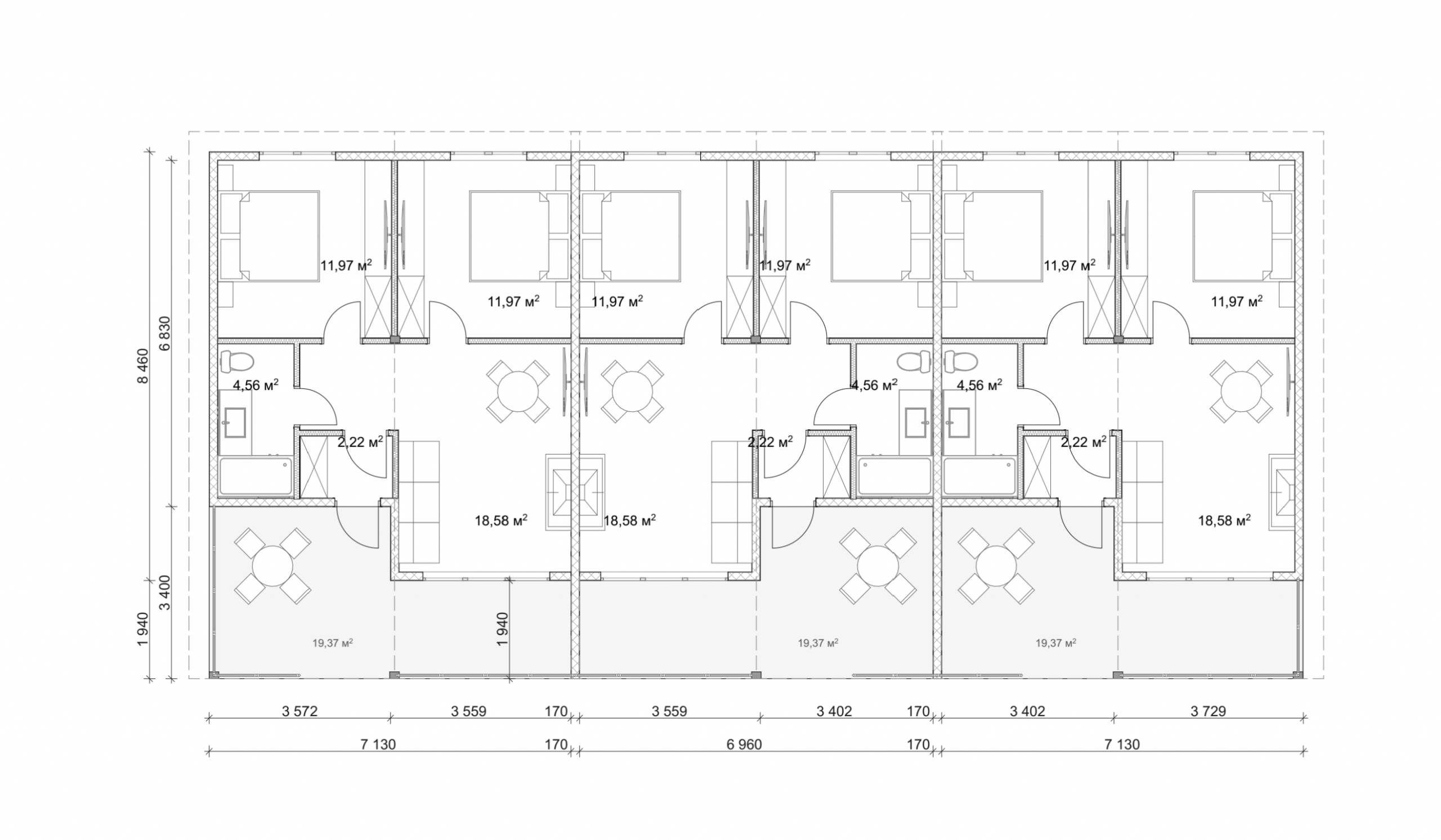
SIP-панельний будинок 220,68м2 від OnlySip

Цей проєкт — сучасний одноповерховий комплекс із чотирьох окремих апартаментів, створений на основі швидкомонтованих та енергоефективних SIP-панелей від OnlySip. Кожен модуль має власний вхід, терасу та продумане зонування, що забезпечує максимальний комфорт для гостей. Фасад виконаний у природних дерев’яних відтінках і доповнений великими вікнами, які наповнюють приміщення світлом. Усередині кожного апартаменту передбачена спальня площею 11,97 м², санвузол та затишна кухня-вітальня 18,58 м². Просторі накриті тераси площею 19,37 м² створюють ідеальне місце для відпочинку просто неба.

220,68_OnlySip план
220,68_OnlySip план

Комплекс підходить як для туристичних локацій, так і для сімейних баз відпочинку або глемпінг-проєктів. Конструкція на основі SIP-технологій гарантує високу теплоізоляцію, міцність і швидкість зведення. Проєкт поєднує сучасну архітектуру, функціональність і стиль, роблячи його оптимальним рішенням для комерційного використання та відпочинку.

220,68_OnlySip фасад1
220,68_OnlySip фасад1
220,68_OnlySip фасад2
220,68_OnlySip фасад2
220,68_OnlySip фасад3
220,68_OnlySip фасад3
220,68_OnlySip фасад4
220,68_OnlySip фасад4
SIP-панельний будинок 35,00м2 від OnlySip
SIP-панельний будинок 35,00м2 від OnlySip
SIP- панельний будинок 136,51м2 від OnlySip
SIP- панельний будинок 136,51м2 від OnlySip

Контакти

м. Тернопіль
+38 096 120 92 92
onlysipua@gmail.com

Категорії

  • Головна
  • Послуги
  • Про нас
  • Проєкти
  • Готові об’єкти
  • Часті питання
  • Блог
  • Контакти
onlysip